产品卖点
1、国标一级能效;
2、超大排风量25±1m3∕min;
3、268W直流变频铜线温控电机;
4、加厚Φ260×130mm电泳风轮;
5、变频智能体感触摸彩显开关/电加热除油免拆洗;6、配置宽屏明亮LED平面灯;
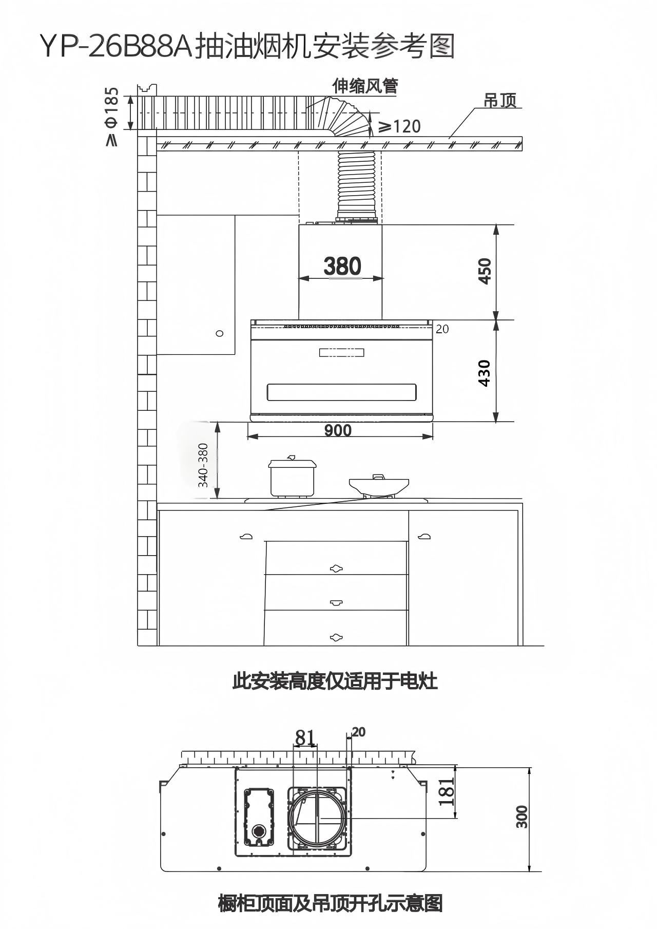
7、Φ185mm阻燃出风口;8、静音加厚铝箔排烟管;9、最大静压1080Pa;
10、慢档噪音≤45dB爆炒噪音≤70dB(A超静音);11、加强版0.7mm/冷板喷涂。
特征卖点:1、全机油路测试(不漏油/不漏风)/箱体过硬/持久耐用;超薄豪华版:时尚高端,直流变频铜线制动系统。
1、吸力大,声音小,2、箱体工艺过硬平整光滑;3、好清洁,自动除油免拆洗/维修方便;4、豪华宽亮全方位照明大灯;
5、易翻结构双层玻璃导流板;6、独特固定液压推杆,解放双手,方便除油可深度清洁,一抹即净;7、超薄防碰头设计,
精工方形一体机身,高贵靓丽,美观实用;加厚油杯易卡扣设计,简易轻松装卸;高端灵敏智能全屏触摸开关,挥手智能启动。
让消费者真正使用上低价高品质厨房吸油工具,给你一个无油烟厨房。


